Realisierungswettbewerb
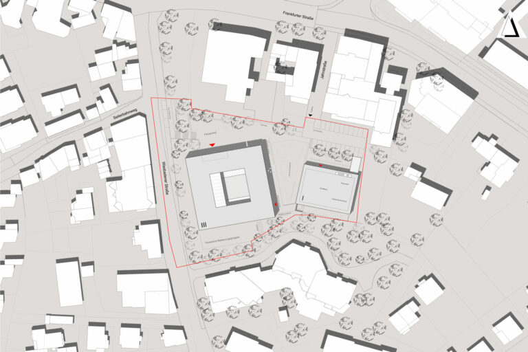
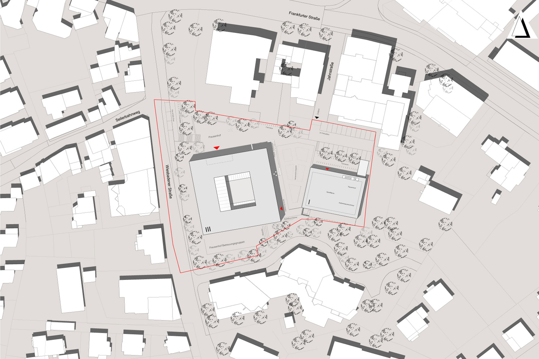
Das Schulzentrum mit Schule + Sporthalle wird zum Bildungscampus.
Die Neubauten zeigen Respekt vor den bestehenden Nachbargebäuden.
Das pädagogische Konzept ist baulich ablesbar.
Die halb eingegrabene Sporthalle ermöglicht ein begehbares Dach, der Pausenhof wird erweitert.
Die vorgesehene Systembauweise mit hoher Vorfertigung hat kurze Bauzeiten zur Folge.
Die Wegeführung ist intuitiv, von der zentralen lichtdurchfluteten Mitte geht es in die
Cluster mit Unterrichts-, Differenzierungsräumen und offenen Lernzonen in den Obergeschossen.
Als Tragwerk für die hochgedämmte Gebäudehülle ist eine Holzhybridkonstruktion geplant.
Bruttogrundfläche: 5.552 m²
Bruttorauminhalt: 23.236 m³
